Mieszkanie Poznań
Winogrady, Poznań, wielkopolskie
- 496 762 zł
- 38,36 m²
- 12 950 zł/m²
Mieszkanie Poznań
Winogrady, Poznań, wielkopolskie
zaktualizowane:
21 lipca 2025
Mieszkanie Poznań
Zaktualizowane: 21 lipca 2025
496 762 zł 38,36 m² 12 950 zł/m²
5/5
2
-
w garażu podziemnym
deweloperski
Piętro:
5/5Liczba pokoi:
2Rok budowy:
-Miejsce parkingowe:
w garażu podziemnymStan mieszkania:
deweloperskiSzczegóły ogłoszenia
- Typ oferty: mieszkanie na sprzedaż
- Cena: 496 762 zł (12 950 zł/m²)
- Rynek: pierwotny (zobacz inne nowe mieszkania w Poznaniu)
- Forma własności: własność, księga wieczysta
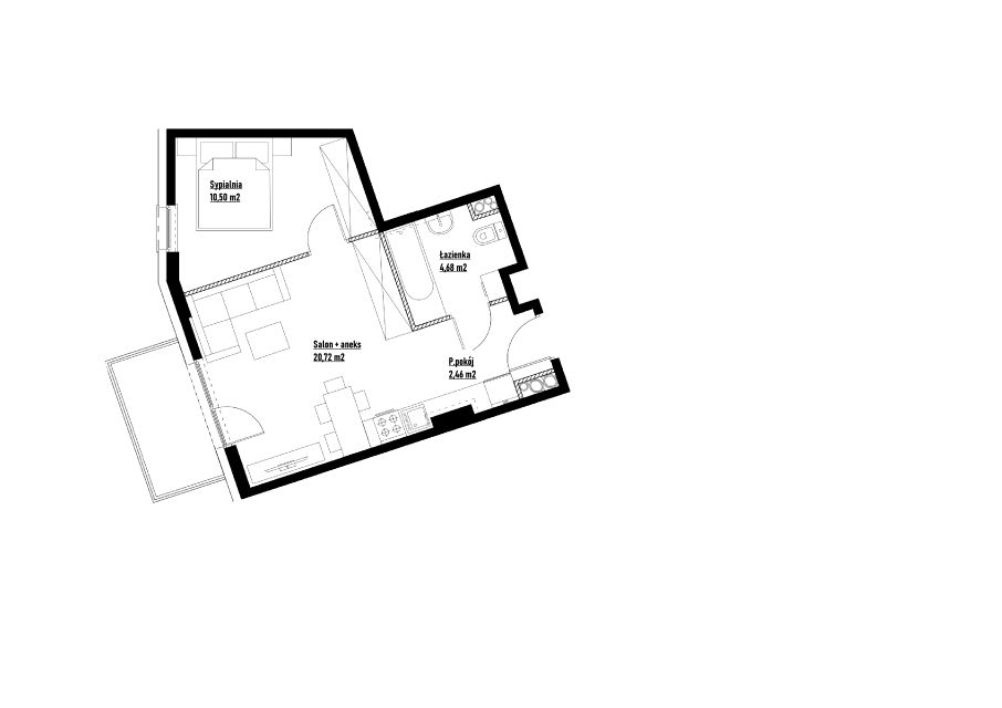
- Charakterystyka mieszkania: 38,36 m², 2 pokoje, 1 łazienka; stan: deweloperski
- instalacje: nowe / wymienione; okna: nowe / wymienione, plastikowe
- Budynek: blok mieszkalny
- technika budowy: nowa technologia
- dostosowany do osób niepełnosprawnych
- Rozkład mieszkania: piętro 5/5, jednostronne, jednopoziomowe
- Powierzchnia dodatkowa: balkon (4,50 m²)
- Czynsz: 300 zł
- Kuchnia: aneks kuchenny
- Media: siła; ogrzewanie: miejskie
- opomiarowanie wody, opomiarowanie ciepła
- Internet, telefon, telewizja kablowa
- Świadectwo charakterystyki energetycznej: nie
- Bezpieczeństwo: drzwi antywłamaniowe, domofon/wideofon, teren ogrodzony
- Miejsce parkingowe: w garażu podziemnym (1 miejsce parkingowe)
- Źródło: biuro nieruchomości: BP BROKER EMIL WAWERSKI, zaktualizowane: 21.07.2025
- numer ogłoszenia: M2
Kupujący nie płaci prowizji
Lokalizacja
- Adres: Winogrady, Poznań, wielkopolskie
- Otoczenie: osiedle bloków mieszkalnych, tereny zielone i rekreacyjne, obiekty handlowo-usługowe
- cicho
Opis nieruchomości
PRZESTRONNE 2 pokojowe mieszkanie w świetnej lokalizacji!
Kup mieszkanie taniej! Skorzystaj z rabatów do końca miesiąca!
Zadzwoń i dowiedz się więcej: Skontaktuj się
Najważniejsze atuty tego mieszkania:
Idealne mieszkanie na start lub pod inwestycję
Bardzo dobrze doświetlone mieszkanie -dwustronna ekspozycja światła
Budynek wykonany z cegły ceramicznej
SMART HOME - nowoczesne zarządzanie (...)

