Nowe mieszkanie Ławica, ul. Świerzawska 13
Świerzawska 13, Ławica, Poznań, wielkopolskie
- 567 295 zł
- 49,33 m²
- 11 500 zł/m²
Biuro sprzedaży
Skontaktuj się
Nowe mieszkanie Ławica, ul. Świerzawska 13
Świerzawska 13, Ławica, Poznań, wielkopolskie
zaktualizowane:
29 sierpnia 2025
Nowe mieszkanie Ławica, ul. Świerzawska 13
Inwestycja: Świerzawska 13
Zaktualizowane: 29 sierpnia 2025
567 295 zł 49,33 m² 11 500 zł/m²
czerwiec 2026
parter/10
2
garaż
deweloperski
Zobacz na mapie
Termin realizacji:
czerwiec 2026Piętro:
parter/10Liczba pokoi:
2Miejsce postojowe:
garażStan mieszkania:
deweloperskiSzczegóły ogłoszenia
- Typ oferty: nowe mieszkanie na sprzedaż
- Cena: 567 295 zł (11 500 zł/m²)
- Termin realizacji: czerwiec 2026
- Status oferty: dostępne
- Rynek: pierwotny (oferta dewelopera)
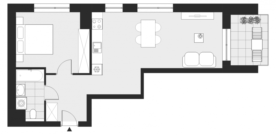
- Charakterystyka mieszkania: 49,33 m², 2 pokoje, 1 łazienka; stan: deweloperski
- Budynek: blok mieszkalny
- winda
- Rozkład mieszkania: piętro 0/10, jednopoziomowe
- Powierzchnia dodatkowa: balkon (5,9 m²)
- Kuchnia: aneks kuchenny
- Miejsce/a postojowe: w garażu wielostanowiskowym (174 miejsca); garaż w bryle budynku, winda z poziomu garażu
naziemne (21 miejsc) - Bezpieczeństwo: monitoring, ochrona
- Źródło: oferta dewelopera: Ataner, zaktualizowane: 29.08.2025
- sygnatura ogłoszenia: A/0/1
Lokalizacja
- Inwestycja: Świerzawska 13
- Adres: Świerzawska 13, Ławica, Poznań, wielkopolskie
- Otoczenie: osiedle bloków mieszkalnych, tereny zielone i rekreacyjne
- Na terenie inwestycji: plac zabaw, centrum sportowe z siłownią
- W pobliżu przedszkole, szkoła podstawowa, szkoła średnia, restauracja, kawiarnia, boisko, przystanek autobusowy, przystanek tramwajowy, centrum handlowe, park, plac zabaw, lasek marceliński, piekarnia, korty tenisowe, stadion poznań, sklep rowerowy, stajnia marcelin
Opis nieruchomości
Zapraszamy do zapoznania się z ofertą 2-pokojowego mieszkania, składającego się z pokoju dziennego z aneksem kuchennym, sypialni, łazienki i balkonu. (...)
| MieszkanieWirtualna wizytaA/7/10 | 78,78 m² | 13 900 zł/m² | 7/10 | 4 | 1 095 042 zł |
| MieszkanieWirtualna wizyta | ||||
|
||||
| A/7/10 |
- Budynek: blok mieszkalny
- Stan wykończenia: deweloperski
- Charakterystyka mieszkania: jednopoziomowe, aneks kuchenny, 1 łazienka
- Ogrzewanie: miejskie
- Powierzchnia dodatkowa: balkon (9,8 m²)
- Miejsce/a postojowe:: w garażu wielostanowiskowym (174 miejsca); garaż w bryle budynku, winda z poziomu garażu
naziemne (21 miejsc) - Udogodnienia: winda
Zapraszamy do zapoznania się z ofertą 4-pokojowego mieszkania, składającego się z pokoju dziennego z aneksem kuchennym, trzech sypialni, łazienki, WC i balkonu.
Więcej
sygnatura: A/7/10
| MieszkanieWirtualna wizytaA/0/2 | 49,76 m² | 11 500 zł/m² | parter/10 | 2 | 572 240 zł |
| MieszkanieWirtualna wizyta | ||||
|
||||
| A/0/2 |
| MieszkanieWirtualna wizytaA/1/7 | 70,14 m² | 11 000 zł/m² | 1/10 | 3 | 771 540 zł |
| MieszkanieWirtualna wizyta | ||||
|
||||
| A/1/7 |
| MieszkanieWirtualna wizytaA/1/10 | 67,86 m² | 11 200 zł/m² | 1/10 | 3 | 760 032 zł |
| MieszkanieWirtualna wizyta | ||||
|
||||
| A/1/10 |
| MieszkanieWirtualna wizytaA/2/7 | 70,14 m² | 11 700 zł/m² | 2/10 | 3 | 820 638 zł |
| MieszkanieWirtualna wizyta | ||||
|
||||
| A/2/7 |
| MieszkanieWirtualna wizytaA/2/8 | 51,50 m² | 12 000 zł/m² | 2/10 | 2 | 618 000 zł |
| MieszkanieWirtualna wizyta | ||||
|
||||
| A/2/8 |
| MieszkanieWirtualna wizytaA/3/1 | 71,06 m² | 12 600 zł/m² | 3/10 | 3 | 895 356 zł |
| MieszkanieWirtualna wizyta | ||||
|
||||
| A/3/1 |
| MieszkanieWirtualna wizytaA/3/2 | 45,78 m² | 13 500 zł/m² | 3/10 | 2 | 618 030 zł |
| MieszkanieWirtualna wizyta | ||||
|
||||
| A/3/2 |
| MieszkanieWirtualna wizytaA/3/7 | 70,14 m² | 12 500 zł/m² | 3/10 | 3 | 876 750 zł |
| MieszkanieWirtualna wizyta | ||||
|
||||
| A/3/7 |
| MieszkanieWirtualna wizytaA/3/8 | 51,50 m² | 12 200 zł/m² | 3/10 | 2 | 628 300 zł |
| MieszkanieWirtualna wizyta | ||||
|
||||
| A/3/8 |
Więcej
Biuro sprzedaży
799 352...
799 352 510












