Nowe mieszkanie Starołęka, ul. Unii Lubelskiej 10
Unii Lubelskiej 10, Starołęka, Poznań, wielkopolskie
- 56,44 m²
Biuro sprzedaży
Skontaktuj się
Nowe mieszkanie Starołęka, ul. Unii Lubelskiej 10
Unii Lubelskiej 10, Starołęka, Poznań, wielkopolskie
zaktualizowane:
7 lipca 2025
Nowe mieszkanie Starołęka, ul. Unii Lubelskiej 10
Inwestycja: Unii Lubelskiej Vita
Zaktualizowane: 7 lipca 2025
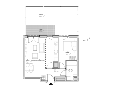
56,44 m²
I kwartał 2026
5/12
3
garaż
deweloperski
Zobacz na mapie
Termin realizacji:
I kwartał 2026Piętro:
5/12Liczba pokoi:
3Miejsce postojowe:
garażStan mieszkania:
deweloperskiSzczegóły ogłoszenia
- Typ oferty: nowe mieszkanie na sprzedaż
- Termin realizacji: I kwartał 2026
- Status oferty: dostępne
- Rynek: pierwotny (oferta dewelopera)
- Charakterystyka mieszkania: 56,44 m², 3 pokoje, 1 łazienka; stan: deweloperski
- Budynek: blok mieszkalny
- winda
- Rozkład mieszkania: piętro 5/12, jednopoziomowe
- Powierzchnia dodatkowa: loggia (2,8 m²)
- Kuchnia: aneks kuchenny
- Miejsce/a postojowe: w garażu wielostanowiskowym, przynależne do mieszkania - z obowiązkiem zakupu; garaż w bryle budynku, winda z poziomu garażu
- Źródło: oferta dewelopera: Develia, zaktualizowane: 07.07.2025
- sygnatura ogłoszenia: D.05.240
Lokalizacja
- Inwestycja: Unii Lubelskiej Vita
- Adres: Unii Lubelskiej 10, Starołęka, Poznań, wielkopolskie
- Otoczenie: tereny zielone i rekreacyjne
- Na terenie inwestycji: rowerowania, dwie strefy rekreacyjne z urządzeniami dla dzieci i osób starszych
- W pobliżu przedszkole, szkoła podstawowa, przychodnia, przystanek autobusowy, przystanek tramwajowy, supermarket, las dębiński, wartostrada
Opis nieruchomości
Zapraszamy do zapoznania się z ofertą 3-pokojowego mieszkania, składającego się z pokoju dziennego z aneksem kuchennym, dwóch sypialni, łazienki, WC i loggii. (...)
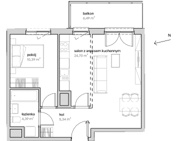
| MieszkanieA.01.007 | 43,72 m² | 1/12 | 2 |
| Mieszkanie | ||
|
||
| A.01.007 |
- Budynek: blok mieszkalny
- Stan wykończenia: deweloperski
- Charakterystyka mieszkania: jednopoziomowe, aneks kuchenny, 1 łazienka
- Ogrzewanie: miejskie
- Powierzchnia dodatkowa: balkon (6,1 m²)
- Miejsce/a postojowe:: w garażu wielostanowiskowym, przynależne do mieszkania - z obowiązkiem zakupu; garaż w bryle budynku, winda z poziomu garażu
- Udogodnienia: winda
Zapraszamy do zapoznania się z ofertą 2-pokojowego mieszkania, składającego się z pokoju dziennego z aneksem kuchennym, sypialni, łazienki i balkonu.
Więcej
sygnatura: A.01.007
| MieszkanieA.01.005 | 81,45 m² | 1/12 | 4 |
| Mieszkanie | ||
|
||
| A.01.005 |
| MieszkanieA.02.030 | 56,85 m² | 2/12 | 3 |
| Mieszkanie | ||
|
||
| A.02.030 |
| MieszkanieA.06.070 | 81,45 m² | 6/12 | 4 |
| Mieszkanie | ||
|
||
| A.06.070 |
| MieszkanieB.08.173 | 57,18 m² | 8/12 | 3 |
| Mieszkanie | ||
|
||
| B.08.173 |
| MieszkanieA.07.092 | 44,92 m² | 7/12 | 2 |
| Mieszkanie | ||
|
||
| A.07.092 |
| MieszkanieA.00.001 | 62,94 m² | parter/12 | 3 |
| Mieszkanie | ||
|
||
| A.00.001 |
| MieszkanieA.00.002 | 44,92 m² | parter/12 | 2 |
| Mieszkanie | ||
|
||
| A.00.002 |
| MieszkanieA.01.008 | 44,82 m² | 1/12 | 2 |
| Mieszkanie | ||
|
||
| A.01.008 |
| MieszkanieA.01.009 | 44,85 m² | 1/12 | 2 |
| Mieszkanie | ||
|
||
| A.01.009 |
Więcej
Biuro sprzedaży
61 333 30...
61 333 30 00











